Solkullevägen 40
Landvetter
HÖGT OCH FRITT UTSIKTSLÄGE MED EN TOTALYTA OM 180 KVM, BERGVÄRME, UTERUM, SOLIG UTEMILJÖ OCH ETT LÄCKERT VARDAGSRUM MED KAMIN Mitt i centrala och expansiva Landvetter ligger denna gedigna och välskötta sluttningsvilla från Eksjöhus som är uppförd 1982. Här erbjuds du ett ett bekvämt och trivsamt boende på en lugn och lummig återvändsgata. Villan som är mycket energisnål har en ny bergvärmepump och många stora, tunga renoveringar är utförda genom åren. Här kan du njuta av ett platsbyggt kök i trendig design med vidsträckt utsikt och utgång till balkong, ett elegant badrum med dubbeldusch och ägarna har skapat ett fantastiskt vardagsrum som har tak öppet till nock med synliga balkar och rikligt med fönster som ger ett otroligt ljusinsläpp. Planlösningen är väldigt flexibel med många rum att nyttja efter dina egna behov och generöst med förvaringsutrymmen finns. I den grönskande trädgården råder en underbar utemiljö. Mysiga uteplatser i olika väderstreck ger dig solmöjligheter från morgon till kväll. Här kan du njuta av lugnet på den lummiga uteplatsen och solfantastens givna plats är på utsiktsaltanen där solmöjligheter finns under hela dagen. Ett rogivande uterum finns för avkoppling och socialt umgänge och den vedeldade badtunnan ligger precis intill. Friggeboden har en platsbyggd arbetsbänk för plantering och bra förvaring för trädgårdsgrejer. I den mindre garagedelen har du bra förvaringsytor och elbilsladdare finns intill. Här bor du med närhet till allt du kan tänkas behöva såsom busshållplats, skola, förskola och centrum med affärer, restauranger, apotek och mysiga butiker. En kort promenad från huset når du Landehofs elljusspår med konstsnö på vintern och utomhusgym samt Gallhålans naturreservat med mäktiga naturupplevelser och fina strövområden. Vid Landvettersjön finns badplats som har både sandstrand och bryggor. Här har en sport- och fritidsanläggning uppförts med äventyrsgolf, paddel, tennis, pickleball och glasskafé. Landvetter Fotboll har sin egna toppmoderna anläggning i Önneröd och i Pinntorpshallen intill finns en innebandyklubb. Landvetter Ryttarsällskap har sin nya anläggning längs Tahultsvägen. Några minuters bilfärd till Chalmers Golfklubb och Landvetter flygplats.
Visningar
-
14apriltisdagkl 17:00 - 18:00Bokad visning. Välj en tid som passar dig på Signatur Mäklarbyrås hemsida, ring eller mejla mig. Varmt välkomna!Klicka här för att boka
Fakta
Utgångspris
Fast.beteckning:
Landvetter 6:573
Rum
6 st
Boarea
138 m²
Biarea
62 m²
Tomtarea
822 m²
Byggnadstyp
Sluttningsvilla
Byggnadsår
1982
Dokument
Fastighetsmäklare
Interiör
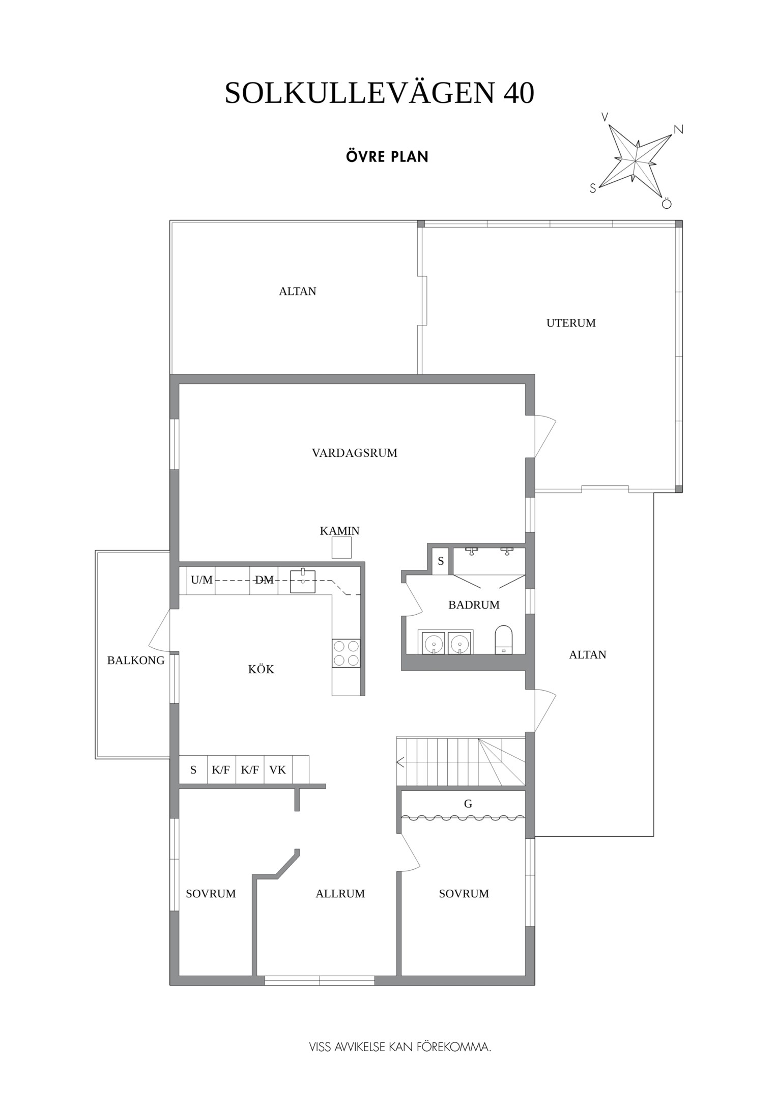
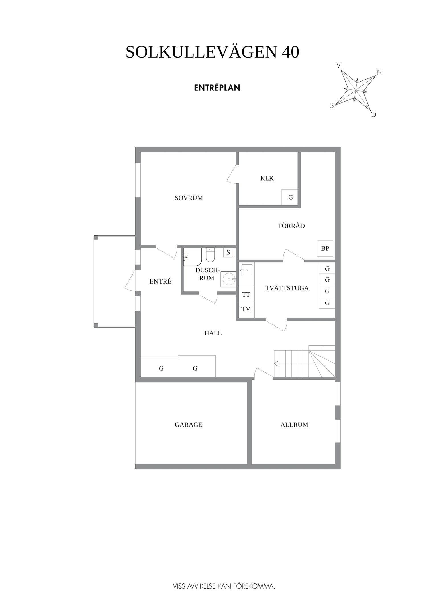
ENTRÉPLAN Praktiskt med entré under tak. När du kliver in via farstun möts du av en rymlig och välkomnande hall. Entrédörren har Yale Doorman lås och på vardera sida om dörren sitter ett högsmalt fönster som släpper in ljus. Rikligt med förvaring finns i en generös garderobslösning med skjutdörrar. Möjlighet finns att sätta in en dörr ut mot garagedelen. Gott om plats för ytterkläder och skor finns längs med ena väggen. Den väggen är målad i en ljusgrå nyans och övriga väggar är målade i vitt. Från hallen fortsätter parkettgolvet i ek vidare in i sovrum och klädkammare. Sovrummet är väl tilltaget och har en klädkammare. Ett rogivande rum som vetter mot den lugna återvändsgatan. Plats finns för garderober och byråar. Väggarna är målade i en mörk, grön nyans Jotun Balans. I klädkammaren finns mycket bra förvaring och en garderob. Här är väggarna målade i vitt. Vidare in i hallen ligger ett flexibelt allrum som av ägarna används som kombinerat gästrum, kontor och musikstudio. Rummet kan likväl användas som ett mysigt sällskapsrum, gym och som en lyxigt stor förvaringsyta. På det isolerade betonggolvet ligger en heltäckningsmatta. Väggarna är målade i vitt och utanpåliggandes spotlights i taket lyser upp med ett stämningsfullt sken. Denna ytan var tidigare en del av garaget och ett förråd. Önskar du större garage kan du ta bort väggen ut mot garagedelen igen. I anslutning till hallen ligger ett helkaklat duschrum. Väggarna pryds av ett vitt kakel och på golvet ligger en mörk klinker. Här finns handfat med kommod, spegel och wc. Under 2021 sattes ett högskåp in och duschväggarna byttes ut mot nya. Vägg i vägg har du en rymlig tvättstuga med tätskikt i original utförande. Här finns mycket bra arbetsytor och gott om plats för ytterligare klädvård. Ovan tvättmaskin från 2019 och torktumlare från 2022 finns en bänkskiva i laminat. Under 2021 målades golvet om, garderober sattes in, bänkskivan byttes ut och nya skåp sattes upp. Väggarna är målade i vitt och betonggolvet är målat i en grå nyans. Innanför tvättstugan ligger pannrummet och här står husets bergvärmeanläggning. Här finns smarta förvaringslösningar och gott om plats för att förvara ytterkläder och skor. ÖVRE PLAN På det övre planet möts du direkt av det fina ljusinsläppet och det trendiga köket. De genomtänkta fönsterplaceringarna på detta plan ger dig direkt ovanför trappan ett unikt ljusflöde från fyra väderstreck. På alla golv ligger en enstavs parkett i ek, Tarkett Prestige, som är laserad i en ljusare nyans. I hallen och köket är väggarna målade i en behaglig grå nyans, Jotun Morgondis. Från hallen når du via en helglasad balkongdörr uteplatser och trädgård. Köket som är signerat Woodrich är en svensk kökstillverkare som specialiserar sig på måttanpassade kökslösningar och utbytesluckor med fokus på att kombinera personlig design med hantverksmässig kvalitet. Köket har skåp i fullhöjd och luckor i en snygg antracitgrå nyans. Här finns generöst med förvaring. Ett belyst vitrinskåp blir en trevlig detalj. Vitvarorna består av induktionshäll, fläktkåpa i rostfritt, varmluftsugn och mikro från 2016. Kyl och frys är från 2015 och diskmaskin från 2014. En extra front i samma färg som köket finns om man vill sätta in en integrerad diskmaskin. Vid kyl och frys finns en smart placerad avställningsbänk. Här finns även en vinkyl. Ovanför påkostade bänkskivor i vit Carraramarmor sitter ett vitt fasat kakel i halvförband som vid fläkten går hela vägen upp till taket. Infällda spotlights i taket lyser upp med ett fint sken. Matplatsen fullkomligt badar i ljus. Från köket har du fantastiskt utsikt och via en helglasad balkongdörr når du den soldränkta balkongen. En flexibel sällskapsyta finns i anslutning till kök och hall. Har i dagsläget används som kontor men lämpar sig lika väl till ett litet tv-rum till barnen. Väggarna är målade i en en dov röd nyans, Jotun Sophisticated Red. På vardera sida om rummet ligger två sovrum. Det största rummet har en generös garderobslösning bakom ett draperi längs med hela ena väggen. Väggarna är målade i vitt. Det andra rummet ligger i vinkel och rymmer det mesta som behövs såsom säng, skrivbord och byrå. Detta rummet har en målad fond och övriga väggar är målade i vitt. Det eleganta badrummet erbjuder en harmonisk kombination av stil och komfort där varje detalj är noggrant genomtänkt. Här möts du av en påkostad interiör med rena linjer och materialval av högsta kvalitet som skapar en tidlös och lyxig känsla. Bakom stora glasdörrar väntar generösa dubbelduschar. De infällda nischerna ger praktisk förvaring. Den rejäla kommoden med dubbla handfat erbjuder gott om utrymme och bekvämlighet. Ovanför löper en stor spegel längs väggen som förstärker rymden och reflekterar ljuset på ett vackert sätt. Ett fönster släpper in naturligt dagsljus medan infällda spotlights i taket ger en behaglig och stämningsfull belysning under dygnets alla timmar. Den behagliga elgolvvärmen gör varje steg varmt och komfortabelt. Både vägghängd toalett och komod gör det enkelt att städa. Vidare in i huset öppnar sig vardagsrummet som med sina synliga balkar och generösa takhöjd ger en härlig rymd. Rummet som är både luftigt och ljust har stora fönsterpartier som släpper in rikligt med naturligt ljus och skapar en öppen och välkomnande känsla. Rummets generösa ytor erbjuder dig goda möjligheter att skapa en trivsam och funktionell möblering. Kaminen ger hög mysfaktor och skönt värmetillskott under kallare dagar. Väggarna är målade i en greige nyans, Jotun Kalk. Rummet kan delas av till ett extra sovrum om behovet finns. En balkongdörr leder dig ut till uterummet utanför som blir som ett extra vardagsrum. Den perfekta platsen för avkoppling, gemenskap och underhållning under stora delar av året. De stora fönsterpartierna släpper in ett rikligt flöde av ljus och skapar en sömlös övergång mellan inne och ute. Väggarna på husets fasad i uterummet målades i en ljus kulör, Jotun Froströk under 2022. Tanken var att måla resten av huset i samma kulör. Ett härligt rum där även tomater och gurkor älskar att växa.
Tomt
Lummig och grönskande trädgårdstomt med gräsmattor i två olika nivåer. Här finns mängder av fina planteringar, buskar och stensättningar. En lättskött slänt, en vacker rosenkvitten och stora fina pioner som blommat varje år. Rhododendronbuskar planterades 2021 och bärbuskar är under uppväxt. En stor rabarber har gett massor av frukt varje år. Pallkragar finns för att kunna odla. På ena pallkragen sitter ett miniväxthus. Tomten är fylld med natursten.
Träaltanen går runt två sidor av huset med solmöjligheter från morgon till kväll. Här erbjuds du både vid sträckt utsikt och lummig grönska. Det mysiga uterummet är placerat mittemellan altanerna och nås även från vardagsrummet. Från köket når du den lilla balkongen som ligger i sydvästläge.
Planbestämmelser
Vattenskyddsområde (2022-12-20) Stadsplan (1981-03-12)
Bilplats
På den asfalterade infarten till huset får upp till 3 bilar plats.Bredband
Fiber.
Ventilation
Mekanisk (endast frånluft).
Vatten och avlopp
Kommunalt vatten året om. Kommunalt avlopp.
Energideklaration
Utförd
Beställd: 9/4 2026
Elektricitet
Nätbolag
Härryda Energi
Förbrukning
17 503 kWh/år
Drift per år
Uppvärmning
19 315 kr
Försäkring
3 865 kr
Vatten/avlopp
9 116 kr
Sotning
150 kr
Renhållning
3 998 kr
Summa
36 444 kr
Taxeringsuppgifter
Typkod
220, Småhusenhet, bebyggd.
Totalt
5 120 000 kr
Byggnad
3 015 000 kr
Mark
2 105 000 kr
Skatt/avgift
10 425 kr
Taxeringsår
2024
Värdeår
1982
Pantbrev
Summa
4 565 000 kr
Antal
20 st
Byggnad
Typ
Sluttningsvilla
Byggår
1982
Utv plåtarbete
Lackerad plåt
Fasad
Trä
Grund
Betongplatta
Grundmur
Betong
Stomme
Trä
Uppvärmning
Bergvärme
Tak
Betongpannor
Fönster
3-glas
Renoveringar
NUVARANDE ÄGARE 2026 Taktvätt med 4 års garanti 2024 Ny bergvärmepump 2024 Ny markis vardagsrum och nytt tyg i de andra markiserna 2024 Nytt elskåp 2024 Elbilsladdare installerades av Laddboxkillarna 2024 Målat grundmuren 2022 Ombyggnad vardagsrum och nytt fönster sovrum nere 2019 Renovering badrum 2019 Ny luftvärmepump 2017 Ny mur och stenlagd entré och byggt pergola 2016 Nytt kök och ny fläkt med motor till den mekaniska ventilationen FÖEGÅENDE ÄGARE 2015 Målat fasad 2013 Ny friggebod 2012 Nytt tak och byggt uterum 2002 Bergvärme.
Övrigt
Vid förändring av planlösning 2022 byggdes ett nytt vardagsrum. Ytorna mellan två mindre rum öppnades upp, taket lyftes och bjälkarna togs fram. Taket isolerades med skum. Bjälkarna har förstärkts och klätts in och spotlights och ljusslingor installerades. Ett nytt stående fönster installerades och ena fönsterpartiet öppnades upp och bredare fönster sattes in. En platsbyggd bokhylla byggdes. Högtalarkablar är dragna i väggen mellan den platsbyggda bokhyllan och bakom tv. En kamin installerades i vardagsrummet, Rais Nexo 140L. I samband med detta byggdes det gamla vardagsrummet om till ett mindre sällskapsrum och ett sovrum. Större delen av husets lampknappar är försedda med Plejd som innebär att de kan styras via app/google home eller liknande. Skapa enkelt scenarion för att styra din belysning automatiskt. 2025 installerades en robotgräsklippare. Slingan blir kvar och roboten kan eventuellt ingå. Roboten behöver flyttas manuellt mellan de två olika gräsmattorna.
Övriga byggnader
Garaget är numera ombyggt till ett stort allrum och en mindre garagedel. För den som önskar större garage går väggen att ta ner igen. Utrymmet lämpar sig väl till förvaring av det mesta såsom barnvagnar, verktyg, skidor, ved och cyklar. Det finns två hyllor för däckförvaring och en äldre frys. Friggeboden har bra förvaringsyta för trädgårdstillbehör och en platsbyggd arbetsbänk för plantering och snickeri. Ett fönster är utbytt för att maximera utsikt och ljusinsläpp. El finns i skjulet.
Karta
Planlösning
Planskiss Övre plan
Planskiss Entréplan
Bilder
Fastighetskarta
Sandstrand och bryggor med äventyrsgolf, paddel, tennis, pickleball och glasskafé
Lekplats och fotbolls/basketplan i centrum
Landehof erbjuder trail-cykling och spår för löpning på 5km, 7km och 10km och konstsnö på vintern
Skogen vid Landehof erbjuder fantastiska utemiljöer med gym, flertalet vindskydd och stigar
Resecentrum med mycket bra kommunikationer till Göteborg via X6
Kulturhus och idrottshall
Landvetter centrum med flera små mysiga butiker, restauranger, apotek, gym och vårdcentral
Prisbelönt ICA affär och fiskaffär